Продается коммерческая недвижимость, 51 кв.м., 8/22 эт.
Обзор№ - 1463
| Стоимость | 55 000 000   | 
|---|---|
| Включено в Ставку | Эксплуатационные расходы | 
| Юридический адрес | Есть | 
| Площадь, кв.м. | 51 | 
| Этаж | 8 | 
| Этажность | 22 | 
| Класс здания | A+ | 
Адрес
| Населенный пункт | Москва | 
|---|---|
| Улица | набережная Пресненская | 
| Номер дома | 10с2 | 
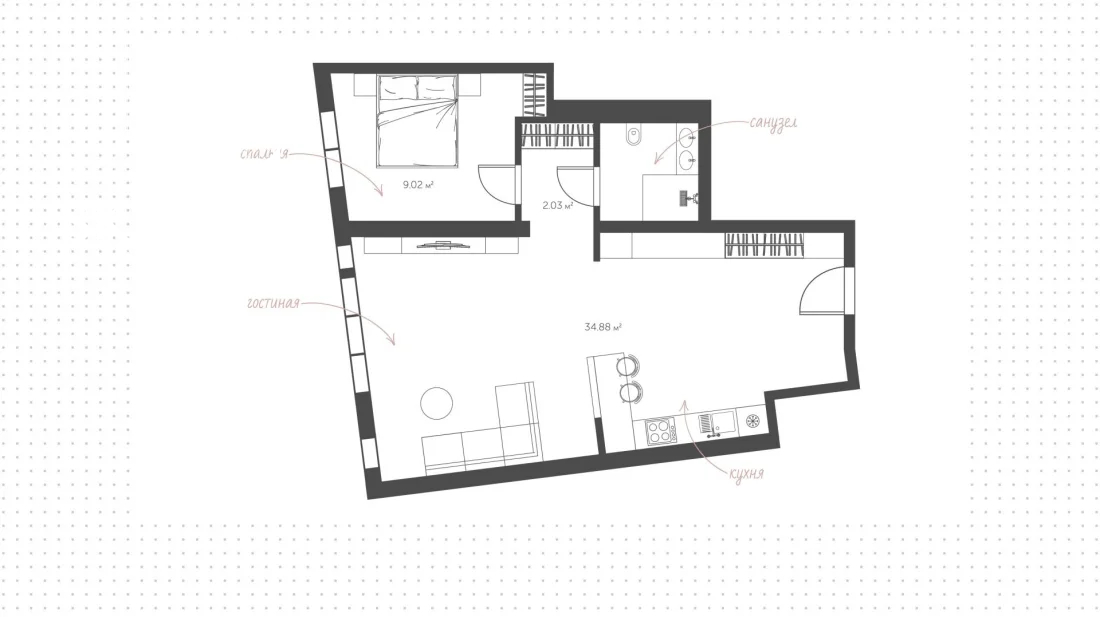
Апартаменты с одной спальней площадью 51 м² в жилом комплексе «IQ Квартал», который является частью делового центра «Москва-Сити». Панорамные окна наполняют комнаты солнечным светом и теплом, открывая захватывающие виды на оживлённый город.
Интерьер оформлен в стиле лофт с преобладанием белых и серых оттенков. Светлые комнаты гармонично дополняют шкафы и двери с фактурой дерева, ламинат и керамическая плитка под бежевый камень. Для вашего комфорта установлена вся необходимая техника в кухне — готовьте любимые блюда с первых минут. Планировка включает кухню-гостиную, спальню, санузел и зону прихожей.





























